bezauberndes Bauernhaus -teilrenoviert- aus dem Jahr 1880 in Oderding bei Weilheim

82398 Polling, Bauernhaus zum Kauf

Objekt­beschreibung

Sonstiges

Objektbeschreibung:

Historisches Bauernhaus mit Charme und Potenzial – kein Denkmalschutz!

Willkommen in einem wahren Juwel der ländlichen Baukunst: Dieses bezaubernde Bauernhaus aus dem Jahr 1880 vereint den rustikalen Charme vergangener Zeiten mit vielfältigen Möglichkeiten für die Zukunft. Auf einem Grundstück von insgesamt ca. 597 m² erwartet Sie ein liebevoll erhaltenes Anwesen, das durch seine Authentizität, seine Lage und sein Entwicklungspotenzial überzeugt.

Wohnen mit Geschichte – und Zukunft
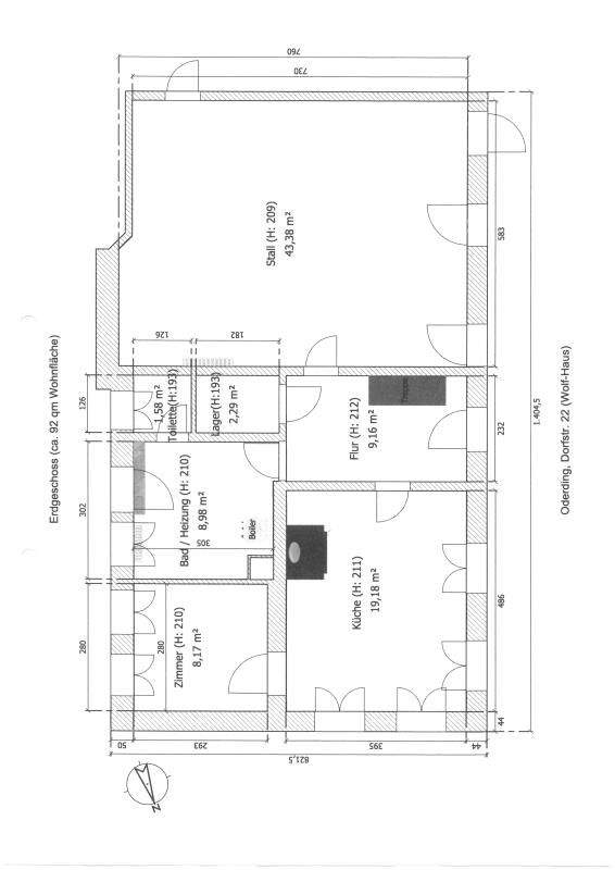
Die Wohnfläche von derzeit ca. 105 m² erstreckt sich über zwei Etagen und bietet ausreichend Raum für individuelles Wohnen im traditionellen Stil. Alte Holzdielen, stilvolle Kassettentüren und kunstvoll gearbeitete Holzdecken verleihen dem Haus eine ganz besondere Atmosphäre – ein Ort, der Geschichten erzählt.

Besonders hervorzuheben: Die Immobilie steht nicht unter Denkmalschutz, sodass Sie bei Renovierung und Umbau deutlich flexibler agieren können als bei vergleichbaren Objekten.

Große Ausbaureserve – viel Raum für Ihre Ideen
Ein echtes Highlight ist die beeindruckende Tenne, die mit weiteren ca. 168 m² Raum zur freien Gestaltung bietet. Ob zusätzliche Wohnflächen, eine Werkstatt, ein Atelier oder separate Einliegerwohnungen – Ihren Ideen sind kaum Grenzen gesetzt. Auch eine Nutzung als Mehrgenerationenhaus wäre ohne großen Aufwand denkbar.

Teilrenoviert & technisch vorbereitet
Das Bauernhaus wurde in den letzten Jahren bereits teilweise modernisiert: Neue Ofenheizungen aus dem Jahr 2000 sorgen für behagliche Wärme. Zusätzlich liegt der Anschluss an das örtliche Fernwärmenetz bereits direkt am Haus und muss nur noch aktiviert werden – eine zukunftssichere Investition in Komfort und Nachhaltigkeit.

Idyllische Lage mit Naturanschluss
Eingebettet in eine malerische Umgebung, liegt das Haus romantisch an einem kleinen Dorfbach, geschützt unter dem Blätterdach einer alten Esche. Der nach Osten ausgerichtete, urige Bauerngarten lädt an heißen Sommertagen zum Verweilen im Schatten ein – ein Rückzugsort, der Körper und Geist erfrischt.

Zusätzliche Nebengebäude & vielseitige Nutzungsmöglichkeiten
Zur Liegenschaft gehören zudem ein Schuppenanbau, eine alte Apfellege sowie ein Hühnerstall – perfekt für alle, die sich nach einem naturnahen Leben mit Selbstversorgercharakter sehnen oder handwerklichen Hobbys nachgehen möchten.

Fazit: Ein echtes Herzensprojekt mit Potenzial
Ob für Familien, Handwerker, Kreative oder Visionäre – dieses charmante Bauernhaus bietet eine seltene Gelegenheit, ländliche Idylle mit gestalterischer Freiheit zu verbinden. Mit überschaubarem Aufwand lässt sich hier ein wahres Schmuckstück erschaffen – individuell, nachhaltig und mit viel Seele.

Neugierig geworden?
Fordern Sie gerne unser ausführliches Exposé an oder vereinbaren Sie direkt einen persönlichen Besichtigungstermin. Wir freuen uns darauf, Ihnen dieses besondere Anwesen näher vorstellen zu dürfen!

Lage:

Dieses Objekt wurde uns vom Eigentümer im Alleinauftrag übergeben. Besichtigungen sind nur nach vorheriger Vereinbarung möglich. Wir bitten um Verständnis, dass wir nur Anfragen mit vollständiger Adressangabe bearbeiten. Sollte Ihnen das hier angebotene Objekt doch bereits bekannt sein, bitten wir Sie, uns dies innerhalb von 3 Tagen mitzuteilen. Da dieses Angebot nur für Sie bestimmt und vertraulich zu behandeln ist, entsteht bei einer Weitergabe an Dritte für Sie Provisionshaftung. Unser Auftraggeber wird durch uns vertreten und hat uns diese Einzelheiten bekanntgegeben, die wir ohne Gewähr für deren Richtigkeit und Vollständigkeit wiedergeben.

Ortsbeschreibung

Inmitten des Pfaffenwinkels gelegen, verfügt das Klosterdorf Polling mit ca. 3.400 Einwohnern über zahlreiche historische Sehenswürdigleiten (Kloster Heilig Kreuz, Stiftskirche St. Salvator, u.v.m.). Die Lage, etwa auf der Hälfte der Strecke entlang der alten "Olympiastraße", der B2 von München nach Garmisch- Partenkirchen, 4 km südlich der Kreisstadt Weilheim, bietet vielfältige Möglichkeiten. So lässt sich in etwa einer Stunde Fahrt sowohl München, als auch die Zugspitze erreichen. Ein hoher "Freizeitwert" ist ebenso gegeben, wie das attraktive Arbeitsumfeld des Oberlandes. Ein Supermarkt mit Bäckerei befindet sich in der Ortsmitte. Die Kinder und Jugendlichen haben mit zwei Kindergärten, einer Grundschule, zahlreichen Vereinen und weiterführenden Schulen in unmittelbarer Nähe (Realschulen und Gymnasium in Weilheim und Peißenberg) beste Voraussetzungen für eine gesunde, naturnahe Entwicklung. Die nahe gelegene Kreisstadt Weilheim kann über den bekannten "Prälatenweg" ( Radlweg ) bequem abseits der Strasse erreicht werden.

Sonstiges

Besichtigungen sind nur nach vorheriger Vereinbarung möglich. Wir bitten um Verständnis, dass wir nur Anfragen mit vollständiger Adressangabe bearbeiten. Sollte Ihnen das hier angebotene Objekt doch bereits bekannt sein, bitten wir Sie, uns dies innerhalb von 3 Tagen mitzuteilen. Da dieses Angebot nur für Sie bestimmt und vertraulich zu behandeln ist, entsteht bei einer Weitergabe an Dritte für Sie Provisionshaftung. Unser Auftraggeber wird durch uns vertreten und hat uns diese Einzelheiten bekanntgegeben, die wir ohne Gewähr für deren Richtigkeit und Vollständigkeit wiedergeben.

Kontaktdaten

aktuell

Objektdaten

  • Objekt ID
    K2281
  • Objekttypen
    Bauernhaus, Haus
  • Adresse
    82398 Polling
  • Etage
    2
  • Wohnfläche ca.
    105 m²
  • Grund­stück ca.
    596 m²
  • Zimmer
    5
  • Baujahr
    1880
  • Verfügbar ab
    frei
  • Stellplätze gesamt
    3
  • Balkon/Terrasse
    Garten
  • Böden
    Dielenboden, Fliesenboden
  • derzeitige Nutzung
    frei
  • Energieträger
    Holz
  • Fenster
    Holzfenster, Sprossenfenster
  • Heizungsart
    Ofenheizung
  • Keller
    teilweise unterkellert
  • Kommunikation
    analoger Telefonanschluss
  • möbliert
    teilweise möbliert
  • Sanitär
    Bad mit Dusche, Bad/WC getrennt
  • Sonstiges/Wohnen
    Abstellraum, als Ferienimmobilie geeignet, Dach ausbaufähig, Dachboden, Galerie, Hobbyraum, Wasch-Trockenraum
  • Stellplatz
    Garage, Stellplatz
  • Versorgung
    städtische Stromversorgung, städtische Wasserversorgung
  • Zustand
    Altbau (bis 1945), renovierungsbedürftig, sanierungsbedürftig, teilsaniert
  • Käufer­provision
    2,975% incl. gesetzl. Mehrwertsteuer, mit der Verkäuferpartei ist eine Provision in gleicher Höhe vereinbart.
  • Kaufpreis
    549.000 EUR

Ausstattung / Merkmale

  • ✓ als Ferienimmobilie geeignet
  • ✓ Dielenboden
  • ✓ frei
  • ✓ Garage
  • ✓ Garten
  • ✓ Stellplatz
  • ✓ teilweise unterkellert

Energieausweis

  • Energieausweistyp
    Bedarfs­ausweis
  • Ausstellungsdatum
    29.09.2025
  • Gültig bis
    29.09.2035
  • Gebäudeart
    Wohngebäude
  • Baujahr lt. Energieausweis
    2000
  • Primärenergieträger
    Holz/Hackschnitzel
  • Endenergie­bedarf
    439,90 kWh/(m²·a)
  • Energie­effizienz­klasse
    H
0 25 50 75 100 125 150 175 200 225 250+ H G F E D C B A A+ H G F E D C B A A+ Endenergiebedarf 439,90 kWh/(m²·a)

Lage

Direktanfrage

* Pflichtangaben
 SSL-verschlüsselt
Darstellung der Immobilien mit WP-ImmoMakler Immobilien-Daten bereitgestellt von Immowelt.
JETZT IMMOBILIE VERKAUFEN ODER VERMIETEN